MM – 05
+ INFO
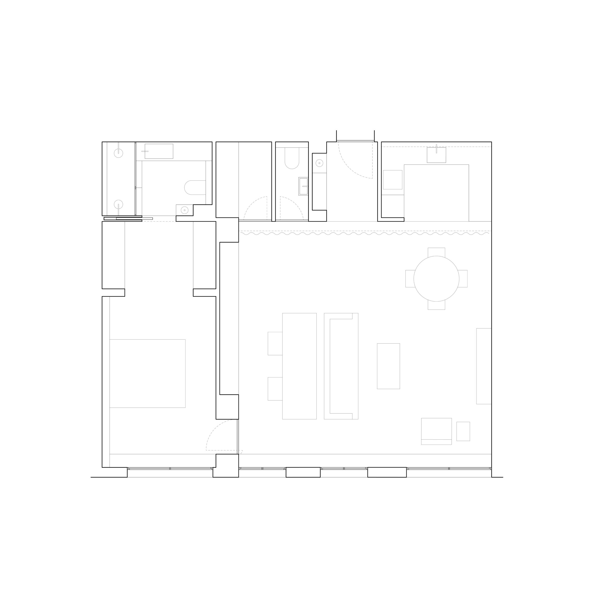
Apartamento que se encuentra con una nueva vida.
Vivienda antigua en desuso que es comprada por una pareja joven. Quieren hacerla suya, adaptarla a sus necesidades y crear un lugar donde sentirse cómodos.
Los espacios serán abiertos y versátiles, llenos de luz. Los materiales usados son pocos y mantienen un hilo conductor, materiales oscuros en las zonas húmedas y tonos claros en el resto.
Granada





